On Screen Takeoff For Mac

Takeoff Software On Center Software

Takeoff Software On Center Software

On Screen Takeoff Reviews And Pricing 2020

On Screen Takeoff Reviews And Pricing 2020

On Screen Takeoff Software By On Center 2020 Reviews

On Screen Takeoff Software By On Center 2020 Reviews

On Screen Takeoff Free Download And Software Reviews Cnet Download Com

On Screen Takeoff Free Download And Software Reviews Cnet Download Com

Free Plan Takeoff Software For Mac

Free Plan Takeoff Software For Mac

The 9 Best Construction Takeoff Software Of 2020 Construction Coverage

The 9 Best Construction Takeoff Software Of 2020 Construction Coverage

The 9 Best Construction Takeoff Software Of 2020 Construction Coverage

If you can navigate a.

On screen takeoff for mac. Takeoff is a fast and optimized offline documentation browser with full support for css jquery ruby rails and the ios os x api docs. The application relates to developer tools. You can now quickly measure areas and lengths on screen by just pointing and clicking the mouse. The streamlined user interface ensures that nothing gets in.

Products released after 1 1 2018 such as on screen takeoff digital production control version 3 95 and higher and quick bid version 4 97 and higher can be licensed using local or license manager licenses. On screen takeoff has estimating features including cost databases by trade electronic quote system and accounting integration. On screen takeoff supports file. With on screen takeoff users can access tools for management of bids project visibility and estimation.

Planswift is an on screen digitizing and takeoff system that is suitable for both commercial and residential gcs and subcontractors in a number of industries such as electrical heavy highway plumbing and custom and. On center software s on screen takeoff ost solution effectively scales to support small construction businesses to large construction enterprises. Miles ahead of just being an ordinary electronic plan viewer on screen takeoff sets the industry standard in plan viewing and advanced takeoff software. 1 2 is the most frequently downloaded one by the program users.

The version of the classic products you install on your mac dictates how you can license your product s. The takeoff is the visualization of what has been defined as the project s scope. The digital takeoff is the job s benchmark for estimating. On screen takeoff allows construction estimators project managers to view and takeoff digital plans calculate materials create rfi s and share plans.

Integrated takeoff and estimating software designed for any project. The latest version of the program can be. Download takeoff 1 2 3 for mac from our website for free. Compare the best takeoff software for mac of 2020 for your business.

Ost Measuring Excavation On Center Software Support

Ost Measuring Excavation On Center Software Support

Ost Cut Fill Sitework On Center Software Support

Ost Cut Fill Sitework On Center Software Support

What Version Am I Using Should I Upgrade Ost Qb Dpc On Center Software Support

What Version Am I Using Should I Upgrade Ost Qb Dpc On Center Software Support

On Screen Takeoff Introduction On Center Software

On Screen Takeoff Introduction On Center Software

Installation Instructions Ost Qb Dpc On Center Software Support

Installation Instructions Ost Qb Dpc On Center Software Support

Ost 3 94 02 System Requirements And Installation Instructions On Center Software Support

Ost 3 94 02 System Requirements And Installation Instructions On Center Software Support

Cannot Open An Ost Takeoff File Ost Ost On Center Software Support

Cannot Open An Ost Takeoff File Ost Ost On Center Software Support

Flooring Estimating Software Bidding Software Oncenter Com

Flooring Estimating Software Bidding Software Oncenter Com

On Screen Takeoff Download On Screen Takeoff Is An Easy To Learn Construction Program

On Screen Takeoff Download On Screen Takeoff Is An Easy To Learn Construction Program

Licensing Classic Products Released Before 12 01 2017 Using An Activation Code Ost Qb Dpc On Center Software Support

Licensing Classic Products Released Before 12 01 2017 Using An Activation Code Ost Qb Dpc On Center Software Support

Active Takeoff Vs On Screen Takeoff Comparison

Active Takeoff Vs On Screen Takeoff Comparison

Blueprint Construction Takeoff Software On Center Software

Blueprint Construction Takeoff Software On Center Software

On Screen Takeoff Cost Reviews Capterra Australia 2020

On Screen Takeoff Cost Reviews Capterra Australia 2020

On Center Software Notifications Enterprise Updates Ost Dpc On Center Software Support

On Center Software Notifications Enterprise Updates Ost Dpc On Center Software Support

Estimating Software For Contractors Waste Less Time Boost Productivity

Estimating Software For Contractors Waste Less Time Boost Productivity

Download Construction Estimating Sheet Software Estm8 Construction Estimating Software Jetstream On Screen Takeoff

Download Construction Estimating Sheet Software Estm8 Construction Estimating Software Jetstream On Screen Takeoff

Open Osp File On Screen Takeoff Data

Open Osp File On Screen Takeoff Data

Concrete Estimating Software On Center Software

Concrete Estimating Software On Center Software

Https Encrypted Tbn0 Gstatic Com Images Q Tbn 3aand9gctdmjel7wp8ovnowx Xtrk5 Mbdtqyiwoo7qrjbvxq Usqp Cau

Https Encrypted Tbn0 Gstatic Com Images Q Tbn 3aand9gctdmjel7wp8ovnowx Xtrk5 Mbdtqyiwoo7qrjbvxq Usqp Cau

Isqft Projects Ost On Center Software Support

Isqft Projects Ost On Center Software Support

Returning An Activation Code Removing License Deactivating Software Pre 1 1 2018 Ost Qb Dpc On Center Software Support

Returning An Activation Code Removing License Deactivating Software Pre 1 1 2018 Ost Qb Dpc On Center Software Support

How Does On Screen Takeoff Calculate Linear Slope Hips And Valleys For Example Ost On Center Software Support

How Does On Screen Takeoff Calculate Linear Slope Hips And Valleys For Example Ost On Center Software Support

Fastduct Reviews And Pricing 2020

Fastduct Reviews And Pricing 2020

On Screen Takeoff And Quick Bid Vs Planswift 2020 Comparison Software Advice

On Screen Takeoff And Quick Bid Vs Planswift 2020 Comparison Software Advice

Combining Merging Bids Ost Qb Dpc On Center Software Support

Combining Merging Bids Ost Qb Dpc On Center Software Support

Square Takeoff Reviews And Pricing 2020

Square Takeoff Reviews And Pricing 2020

Ost Image Legend Issues On Center Software Support

Ost Image Legend Issues On Center Software Support

Ost 3 96 01 01 System Requirements And Installation Instructions On Center Software Support

Ost 3 96 01 01 System Requirements And Installation Instructions On Center Software Support

Ost 3 94 02 01 Linking Adding Uploading Importing Plans Drawings Images Sheets To A Bid On Center Software Support

Ost 3 94 02 01 Linking Adding Uploading Importing Plans Drawings Images Sheets To A Bid On Center Software Support

Stack Construction Estimating Software 2020 Reviews Pricing

Stack Construction Estimating Software 2020 Reviews Pricing

Ost Qb Cannot Create Interactive Bid Insufficient Rights On Center Software Support

Ost Qb Cannot Create Interactive Bid Insufficient Rights On Center Software Support

Ost Planroom Projects Issues On Center Software Support

Ost Planroom Projects Issues On Center Software Support

Download On Screen Takeoff Pro 3 95 3 2

Download On Screen Takeoff Pro 3 95 3 2

Ost Pasted Objects Aren T Where I Expected On Center Software Support

Ost Pasted Objects Aren T Where I Expected On Center Software Support

Ost Qb Error Message Write Access Denied On Center Software Support

Ost Qb Error Message Write Access Denied On Center Software Support

Best Practices And Requirements When Using Sql Server Ost Qb Dpc On Center Software Support

Best Practices And Requirements When Using Sql Server Ost Qb Dpc On Center Software Support

Switching Betwen Full Screen And Normal Crosshairs When Drawing Takeoff Ost Dpc On Center Software Support

Switching Betwen Full Screen And Normal Crosshairs When Drawing Takeoff Ost Dpc On Center Software Support

Mechanical Takeoff Software By Ensign

Mechanical Takeoff Software By Ensign

Insulation Estimating Software Planswift

Insulation Estimating Software Planswift

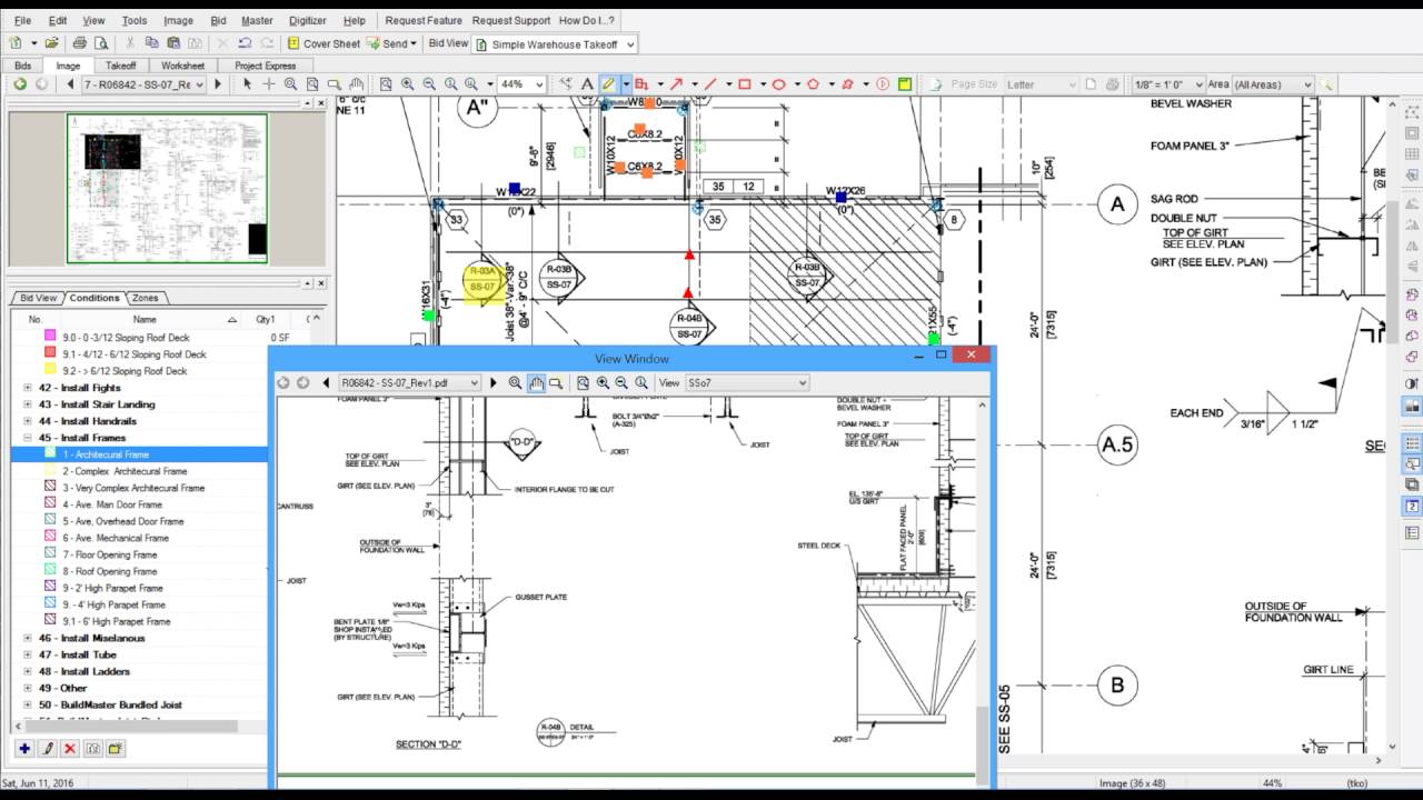
Steel Erection Bid Wizard On Screen Takeoff In Action Complete Takeoff Youtube

Steel Erection Bid Wizard On Screen Takeoff In Action Complete Takeoff Youtube

Cls File Path And File Name Character Limitations On Center Software Support

Cls File Path And File Name Character Limitations On Center Software Support

Ost Miscellaneous Program Issues And Crashes Caused By Corrupt Font Names In Database On Center Software Support

Ost Miscellaneous Program Issues And Crashes Caused By Corrupt Font Names In Database On Center Software Support

Ost Qb Interactive Bids Breaking After Upgrading On Center Software Support

Ost Qb Interactive Bids Breaking After Upgrading On Center Software Support

Https Encrypted Tbn0 Gstatic Com Images Q Tbn 3aand9gcqakdqxmqujocd2c0xpbsanxt5ebnjnid4thh Leoixostu7qif Usqp Cau

Https Encrypted Tbn0 Gstatic Com Images Q Tbn 3aand9gcqakdqxmqujocd2c0xpbsanxt5ebnjnid4thh Leoixostu7qif Usqp Cau

Source : pinterest.com